Skip to content
Home
About Us
Projects
Contact
Home
About Us
Projects
Contact
PROJECTS
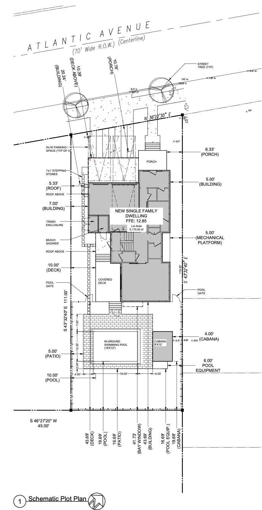
8211 ATLANTIC AVE, LOT 1.02
Scroll to Top